iframe page P3 Stove Page Here

Stove Dimensions


Front & Right Side View Dimensions


Top View Dimensions


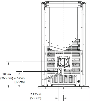
Rear View Dimensions