iframe page Mini Stove Page Here

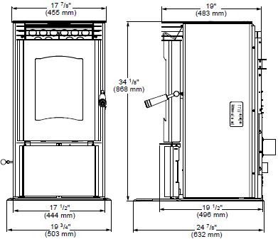
Stove Dimensions


Front & Right Side View Dimensions


Top View Dimensions


Rear View Dimensions