iframe page Empress Stove Page Here

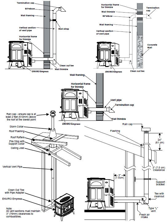
Vent Methods

Installation specifications are subject to change without notice.
Product installation must adhere strictly to the installation manual shipped with product and venting.


Five of the most typical pellet venting methods are illustrated below, refer to product
and venting installation manual for complete instructions and other venting alternatives.